Báo giá cập nhật van cầu chì EI60 và 7 sai lầm phổ biến khi lắp đặt

VẬT LIỆU TOÀN CẦU - TIÊN PHONG CHỐNG CHÁY!

Hotline: 0862626114

Báo giá cập nhật van cầu chì EI60 và 7 sai lầm phổ biến khi lắp đặt
19/12/2025 09:47 AM 389 Lượt xem

    Tác giả: Admin VLTC | Thời gian đọc: 10 phút | Chuyên mục: Kiến Thức

    Trong bối cảnh các quy định về Phòng cháy chữa cháy (PCCC) ngày càng thắt chặt, đặc biệt là sau khi Nghị định 136/2020/NĐ-CP và QCVN 06:2022/BXD đi vào thực tiễn, hạng mục van chặn lửa (Fire Damper) đã trở thành tâm điểm của sự chú ý. Không còn là thiết bị "có cho vui", van cầu chì FD giờ đây là lá chắn bắt buộc để ngăn chặn khói lửa lan truyền, bảo vệ tính mạng và tài sản.

    Tuy nhiên, thị trường giá van cầu chì hiện nay khá "loạn" với đủ loại chất lượng. Bên cạnh đó, việc lắp đặt sai kỹ thuật cũng khiến nhiều chủ đầu tư đau đầu vì không được nghiệm thu.

    Bài viết này của Vật Liệu Toàn Cầu sẽ cung cấp thông tin minh bạch về các yếu tố cấu thành báo giá van cầu chì và sai lầm thường gặp nhất khi thi công, giúp bạn tối ưu chi phí và đảm bảo an toàn tuyệt đối cho công trình.

    1. Tổng quan về Van cầu chì FD EI60 chất lượng cao

    Trước khi đi vào báo giá, chúng ta cần hiểu rõ mình đang trả tiền cho cái gì. Một bộ van giá rẻ trôi nổi sẽ khác hoàn toàn với một bộ van đạt chuẩn kiểm định của Vật Liệu Toàn Cầu.

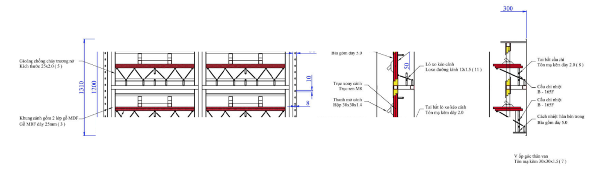
    Dựa trên hồ sơ kỹ thuật, van cầu chì FD của chúng tôi được cấu tạo từ những vật liệu "nồi đồng cối đá" để đạt giới hạn chịu lửa EI60 (60 phút):

    • Thân van: Được làm từ tole mạ kẽm với độ dày lên tới 2.0mm. Độ dày này gấp đôi so với các loại van mỏng 1.0mm trên thị trường, đảm bảo khung van không bị biến dạng khi nhiệt độ lò đốt tăng cao.
    • Cánh van: Đây là "bí mật" công nghệ. Cánh van được chế tạo từ nhiều lớp gỗ MDF với tổng độ dày 25mm. Vật liệu này giúp cách nhiệt cực tốt, ngăn nhiệt truyền từ vùng cháy sang vùng an toàn.
    • Cơ chế kích hoạt: Sử dụng cầu chì nhiệt B-165F và lò xo đường kính 12x1.5mm. Khi nhiệt độ đạt ngưỡng (thường là 72°C), cầu chì tan chảy, lò xo bung ra đóng sập cánh van.
    • Làm kín: Gioăng chống cháy trương nở kích thước 25x2.0mm sẽ tự động phồng lên bịt kín khe hở khi có hỏa hoạn.
    Cấu tạo van cầu chì FD EI60 Vật Liệu Toàn Cầu
    Cấu tạo van cầu chì FD EI60 Vật Liệu Toàn Cầu

    2. Các yếu tố ảnh hưởng đến báo giá van cầu chì EI60

    Khách hàng thường thắc mắc: "Tại sao không có bảng giá cố định?". Thực tế, giá van cầu chì là một biến số phụ thuộc vào 3 yếu tố kỹ thuật chính sau đây:

    2.1. Kích thước và Phân loại cánh (Quan trọng nhất)

    Giá van tỷ lệ thuận với kích thước đường ống gió ($W \times D$). Đặc biệt, kết cấu van sẽ thay đổi theo kích thước để đảm bảo độ bền:

    • Van 1 cánh: Dành cho kích thước nhỏ ($W \le 600, D \le 1200$). Đây là loại có giá thành tốt nhất.
    • Van 2 cánh: Khi chiều cao $D > 1200mm$, chúng tôi phải chia van thành 2 cánh xếp chồng để tránh cong vênh. Chi phí sẽ tăng do thêm trục, thêm lò xo và gia công phức tạp hơn.
    • Van 4 cánh: Dành cho các đường ống khổng lồ ($W > 600, D > 1200$). Đây là dòng van có giá cao nhất do kết cấu khung Grid chịu lực.

    2.2. Vật liệu gia công

    Sự khác biệt về giá nằm ở độ dày vật liệu. Van của Vật Liệu Toàn Cầu dùng tole 2.0mm và gỗ MDF 25mm, đi kèm các lớp cách nhiệt bìa gốm 5.0mm. Chi phí nguyên vật liệu này cao hơn so với các loại van tôn mỏng không đạt chuẩn, nhưng đổi lại là sự an tâm tuyệt đối khi nghiệm thu PCCC.

    2.3. Số lượng và Chi phí vận chuyển

    Đơn hàng dự án số lượng lớn luôn có mức chiết khấu hấp dẫn hơn đơn hàng lẻ. Ngoài ra, chi phí vận chuyển đến các tỉnh thành xa (như dự án tại Cần Thơ hay TP.HCM từ nhà máy Hà Nội) cũng sẽ được tính toán tối ưu trong báo giá tổng thể.

    >>>Tham khảo thêm các loại van chặn lửa của Vật Liệu Toàn Cầu.

    3. 7 Sai lầm phổ biến khi lắp đặt van cầu chì (Cần tránh tuyệt đối)

    Có được van tốt mới chỉ là 50% thành công. 50% còn lại nằm ở khâu lắp đặt. Dưới đây là 7 sai lầm "chết người" mà kỹ thuật viên thường mắc phải, được tổng hợp từ kinh nghiệm thực chiến của Vật Liệu Toàn Cầu:

    Sai lầm 1: Chọn sai chiều dài thân van (L)

    Nhiều nhà thầu quen tay đặt van dài L=200mm (kích thước của van động cơ MFD). Tuy nhiên, đối với van cầu chì FD, chiều dài thân tối thiểu bắt buộc phải là L = 300mm.

    • Hậu quả: Không đủ không gian cho lò xo và cánh van hoạt động. Cánh van khi đóng sẽ bị vướng vào thành ống hoặc phụ kiện kết nối, dẫn đến kẹt van.

    Sai lầm 2: Lắp đặt ngược chiều gió hoặc sai trục

    Van cầu chì hoạt động nhờ lò xo và trọng lực (ở một số thiết kế).

    • Sai lầm: Lắp trục van nằm dọc trong khi thiết kế yêu cầu nằm ngang (hoặc ngược lại) mà không kiểm tra lò xo.
    • Hậu quả: Lực lò xo không thắng được ma sát hoặc trọng lực cánh van, khiến van không đóng kín được khi cầu chì đứt.

    Sai lầm 3: Không chừa cửa thăm (Access Door)

    Đây là lỗi sơ đẳng nhưng phổ biến nhất. Cầu chì nhiệt B-165F là linh kiện cần kiểm tra và thay thế sau sự cố.

    • Sai lầm: Bít kín trần thạch cao hoặc tường gạch ngay vị trí van.
    • Hậu quả: Khi cần bảo trì hoặc thay cầu chì, phải đập phá trần/tường, gây tốn kém khủng khiếp.

    Sai lầm 4: Sử dụng sai loại van cho kích thước lớn

    Cố tình sử dụng van 1 cánh cho kích thước đường ống quá khổ (ví dụ Rộng 800mm).

    • Quy chuẩn: Với $W > 600mm$, bắt buộc phải dùng van 2 cánh hoặc 4 cánh.
    • Hậu quả: Cánh van quá nặng và dài sẽ bị võng, hở gioăng, không đảm bảo độ kín khói và không đạt chuẩn EI60.

    Sai lầm 5: Làm biến dạng khung van khi siết bích

    Thân van làm bằng tole 2.0mm rất cứng, nhưng nếu siết bu lông kết nối với ống gió quá mạnh và không đều tay, hoặc ống gió bị lệch tâm.

    • Hậu quả: Khung van bị vặn xoắn nhẹ. Điều này làm kẹt trục quay cánh van (vốn có dung sai rất nhỏ), khiến van không thể đóng lại được.

    Sai lầm 6: Quên chèn kín khe hở tường

    Van chặn lửa thường được lắp xuyên tường/sàn.

    • Sai lầm: Chỉ lắp van vào lỗ mở mà không chèn vữa chống cháy hoặc keo chống cháy vào khe hở giữa thân van và tường.
    • Hậu quả: Lửa và khói sẽ đi qua khe hở này, vô hiệu hóa chức năng ngăn cháy của van. Lưu ý gioăng trương nở 25x2.0 chỉ làm kín bên trong cánh, không làm kín bên ngoài thân van.

    Sai lầm 7: Mua hàng trôi nổi không có giấy tờ kiểm định

    Nhiều chủ đầu tư ham giá van cầu chì rẻ mà mua hàng gia công tại các xưởng nhỏ lẻ.

    • Hậu quả: Khi nghiệm thu PCCC, Cục Cảnh sát PCCC yêu cầu xuất trình Giấy chứng nhận kiểm định phương tiện (như mẫu PC21 số 4604/KD-PCCC-PY mà VLTC sở hữu). Nếu không có, toàn bộ hệ thống phải tháo dỡ làm lại.
    Sai lầm khi lắp đặt van chặn lửa cầu chì FD
    Sai lầm khi lắp đặt van chặn lửa cầu chì FD

    4. Tại sao nên chọn Van cầu chì FD của Vật Liệu Toàn Cầu?

    Giữa ma trận nhà cung cấp, Vật Liệu Toàn Cầu tự tin là đối tác tin cậy của các nhà thầu cơ điện nhờ 3 cam kết vàng:

    1. Pháp lý minh bạch: 100% sản phẩm có Giấy chứng nhận kiểm định của Bộ Công an, đạt chuẩn EI60 theo ISO 10294-1:1996.
    2. Chất lượng vượt trội: Chúng tôi không cắt giảm nguyên liệu. Thân van luôn đủ dày 2.0mm, cánh MDF 25mm, lớp cách nhiệt bìa gốm 5.0mm đúng như cam kết trong Catalogue. Quy trình sản xuất đạt ISO 9001:2015.
    3. Hỗ trợ kỹ thuật 24/7: Đội ngũ kỹ sư sẵn sàng tư vấn chọn size van, hướng dẫn lắp đặt để tránh 7 sai lầm kể trên, đảm bảo nghiệm thu "một phát ăn ngay".

    5. Hướng dẫn nhận báo giá nhanh nhất

    Để nhận được báo giá van cầu chì chính xác và ưu đãi nhất cho dự án, Quý khách hàng vui lòng cung cấp cho chúng tôi các thông tin sau:

    1. Kích thước đường ống gió (W x H): Để chúng tôi chọn loại 1, 2 hay 4 cánh.
    2. Số lượng: Để áp dụng mức chiết khấu dự án.
    3. Địa điểm giao hàng: Hà Nội, TP.HCM, Cần Thơ hay các tỉnh thành khác.

    Đừng để những sai lầm lắp đặt hay sản phẩm kém chất lượng làm chậm tiến độ dự án của bạn. Hãy liên hệ ngay với Vật Liệu Toàn Cầu – Đơn vị tiên phong vật liệu chống cháy tại Việt Nam.

    THÔNG TIN LIÊN HỆ:

    CÔNG TY CỔ PHẦN CÔNG NGHỆ VẬT LIỆU TOÀN CẦU

    VĂN PHÒNG GIAO DỊCH MIỀN BẮC:

    Địa chỉ: Số 25 - LK03 - Hà Trì, Phường Hà Đông, TP. Hà Nội

    VĂN PHÒNG GIAO DỊCH MIỀN NAM:

    Địa chỉ: Số 40, Đường số 16, Phường An Khánh, TP. Hồ Chí Minh

    VĂN PHÒNG GIAO DỊCH MIỀN TÂY:

    Địa chỉ: Số 5, Đường Nguyễn Đệ, Phường Bình Thuỷ, TP. Cần Thơ

     


    Bản quyền bài viết thuộc về Vật Liệu Toàn Cầu. Vui lòng ghi rõ nguồn khi trích dẫn.

     

    Zalo Zalo
    Tư vấn ngay
    0862626114 0862626114 0906656114 0862626114 0862626114